通用
染整、服裝、面料
日用及防護用品
纖維紗線類
拉鏈紐扣
土工(布)合成材料
地毯
家居材料類
雨傘類
襪子類
汽車及內飾件
建材與公共安全類
童(嬰兒)車(床)
頭盔安全帽
塑料及其制品
閥門
其他測試儀器
產品目錄索引
< a href=" " title="免費電話">免費電話 a>
| 編號 | 產品名稱 | 符合的主要標準 |
 |
FSY153-Ⅳ床芯彈性測試儀 |
|
 |
FSY153-I彈簧受壓耐疲勞儀 |
|
 |
FSY153彈簧受壓耐疲勞儀 |
|
 |
FWS481家用泵測試系統 |
GB/T 40181-2021等測試標準。 |
 |
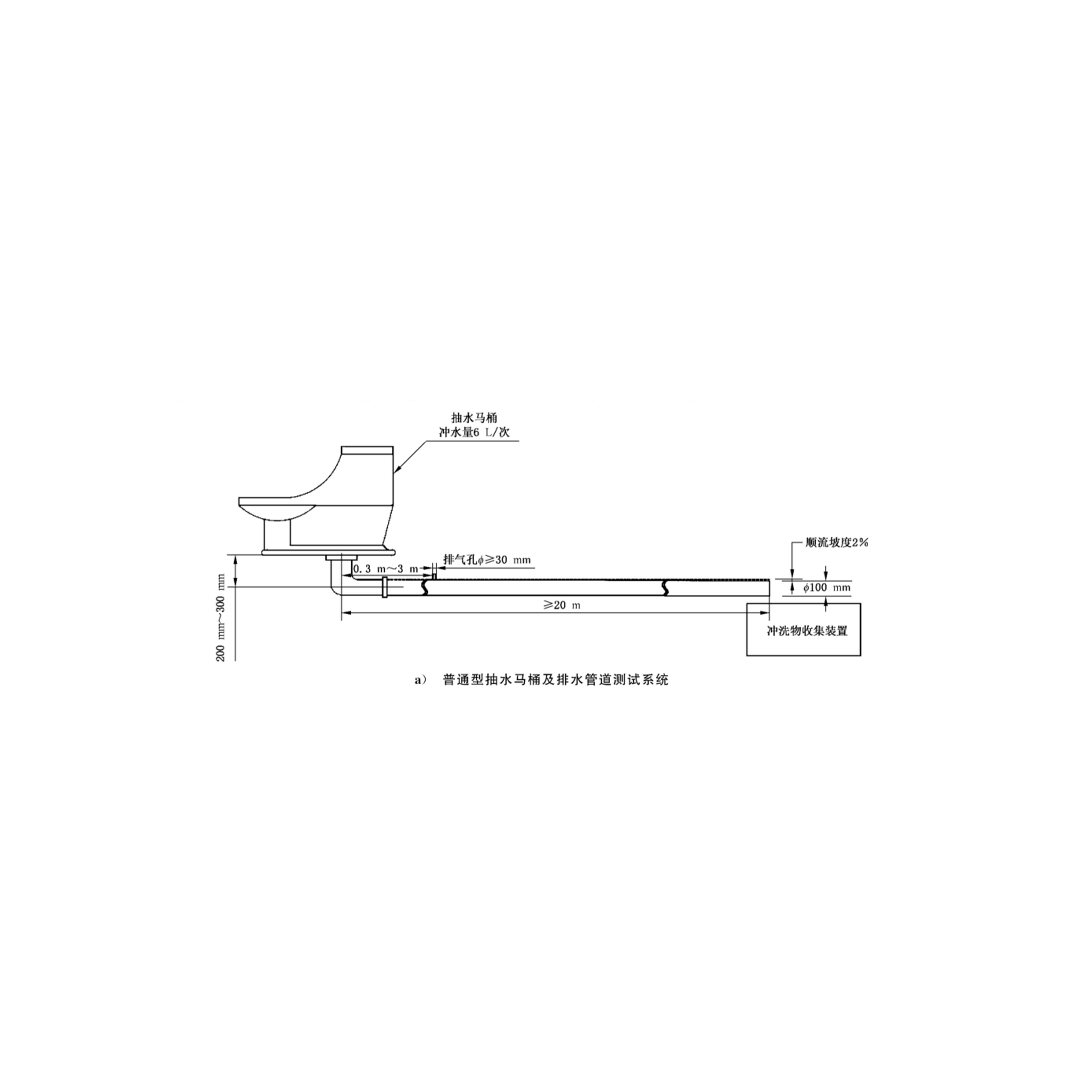
FWS482抽水馬桶及排水管道測試系統 |
GB/T 40181-2021等測試標準。 |
 |
FWS483沉解試驗系統 |
GB/T 40181-2021等測試標準。 |
 |
FY301床墊耐久性試驗機 |
QB1952.2等標準。 |
 |
FY302海綿回彈性測定儀 |
|